DBID: 168
Systémové číslo: P17V00000029 Dle zákona: č. 134/2016 Sb.
Datum zahájení:
05.09.2017
Nabídku podat do:
26.09.2017 11:00
Název, druh veřejné zakázky a popis předmětu
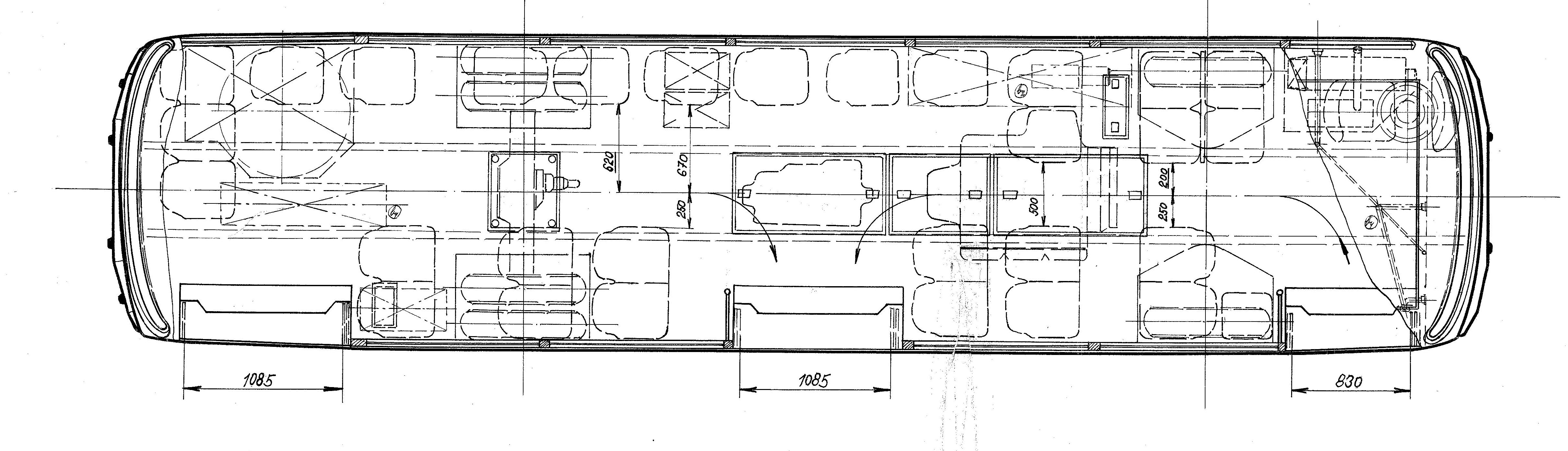
Název: Rekonstrukce historického autobusu Karosa ŠM 11
Druh veřejné zakázky: Dodávky
Stručný popis předmětu: Předmětem Interní zakázky je rekonstrukce historického autobusu Karosa ŠM 11 (dále také jen „Autobus nebo „vozidlo“) do původní podoby Autobusu v době jeho zařazení do provozu MHD dle specifikací, dokumentace a technických postupů stanovených výrobcem vozidla nebo výrobci jeho jednotlivých částí a součástí, včetně převozu na náklady Dodavatele.
Druh zadávacího řízení, předpokládaná hodnota
Druh řízení:
zjednodušené podlimitní řízení
Režim veřejné zakázky:
podlimitní
Předpokládaná hodnota:
neuvedena
Zadavatel
Úřední název: Plzeňské městské dopravní podniky, a.s.