Zadávací dokumentace

Zadávací řízení: Rekonstrukce historického autobusu Karosa ŠM 11

Informace o dokumentu

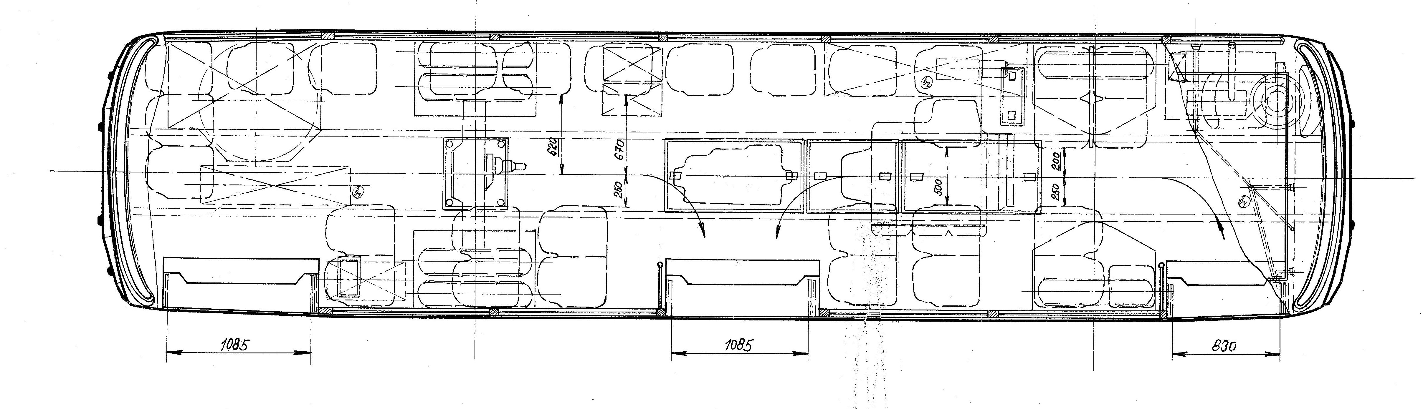
Název: Příloha č. 2 - Rozmístění sedadel
Popis: Nákres rozmístění sedadel
Uveřejnění dokumentu na Profilu: 05.09.2017 07:38:28

Aktuální verze souboru

Jméno souboru: Obrázek JPEG Příloha č. 2 - Rozmístění sedadel.jpg
Velikost: 873,50 KiB
Aktuální verze souboru: 05.09.2017 07:14:04
Otisk MD5: cad02cd6fb22d12f459a943dc725a353
Otisk SHA256: 70051148985b012faac943798d44ea2c2fcc8471addd636be684cbd85a87c55c

Historie souboru

Datum Název Popis Typ dokumentu Jméno souboru Velikost
V 05.09.2017 07:14:04 Příloha č. 2 - Rozmístění sedadel Nákres rozmístění sedadel zadávací dokumentace - Příloha č. 2 - Rozmístění sedadel.jpg 873,50 KiB